
solgt






solgt
Midtparken 36, Arrild, 6520 Toftlund
Flot og hyggeligt sommerhus i Arrild Ferieby med lækker udestue og overdækket terrasse!
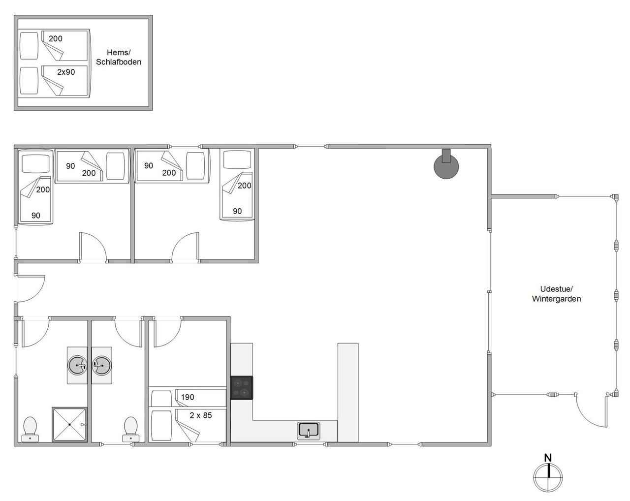
I roligt sommerhusområde Arrild sælges flot og hyggeligt sommerhus i med en dejlig udestue. Sommerhuset er opført i 1977/2019 med 3 soverum. Dejlig naturgrund på 875 m2 med plads til børneleg(se billeder) med rutsjebane og gyngestativ. Huset har et bygningsareal på hele 102 m2 (udestuen 18 m2, boligareal 84 m2), Huset er blevet renoveret i 2020 i en lys, moderne og indbydende indretnings stil. Opvarmning sker ved brændeovn, samt varmepumpe og elvarme. Flot overdækket terrasse 22 m2., shelter og flot bålsted. Udlejningsbudget ved fuld udlejning kr. 88.046 ved Esmark Feriehusudlejning. Huset har 3 soverum og en hems med 2 sovepladser. Flot stenbelægning op til indgangsdøren.
Huset er indrettet med fordelingsgang, flot åbent hyggeligt køkken med opvaskemaskine og spisekrog, pragtfuld stor stue med varmepumpe og brændeovn samt udgang til den flotte udestue. Flot badeværelse, 2 soveværelser med hver 2 fritstående senge samt et børneværelse med køjesenge og hems med 2 sovepladser, gæstetoilet med vaskemaskine.
I roligt sommerhusområde Arrild sælges flot og hyggeligt sommerhus i med en dejlig udestue. Sommerhuset er opført i 1977/2019 med 3 soverum. Dejlig naturgrund på 875 m2 med plads til børneleg(se billeder) med rutsjebane og gyngestativ. Huset har et bygningsareal på hele 102 m2 (udestuen 18 m2, boligareal 84 m2), Huset er blevet renoveret i 2020 i en lys, moderne og indbydende indretnings stil. Opvarmning sker ved brændeovn, samt varmepumpe og elvarme. Flot overdækket terrasse 22 m2., shelter og flot bålsted. Udlejningsbudget ved fuld udlejning kr. 88.046 ved Esmark Feriehusudlejning. Huset har 3 soverum og en hems med 2 sovepladser. Flot stenbelægning op til indgangsdøren.
Huset er indrettet med fordelingsgang, flot åbent hyggeligt køkken med opvaskemaskine og spisekrog, pragtfuld stor stue med varmepumpe og brændeovn samt udgang til den flotte udestue. Flot badeværelse, 2 soveværelser med hver 2 fritstående senge samt et børneværelse med køjesenge og hems med 2 sovepladser, gæstetoilet med vaskemaskine.
Ejendomsmæglerfirmaet Rømø-Skærbæk


